
Suojakehät
Suojakehät tehdään turvallisuutta varten
Suojakehät ovat tärkeä osa portaiden turvallisuutta. Me valmistetaan suojakehät, jotka täyttävät vaatimukset, kestävät käyttöä ja istuvat paikalleen ilman säätöä.
Ota yhteyttäSuojakehät osana turvallista kokonaisuutta
Suojakehien tehtävä on yksinkertainen: estää luvaton kulku sekä putoaminen ja tehdä kulkemisesta turvallista. Käytännössä tämä tarkoittaa oikeaa mitoitusta, toimivia liitoksia ja rakenteita, jotka kestävät vuodesta toiseen. Me katsotaan suojakehä aina osana kokonaisuutta. Yli 50 vuoden kokemus teollisista ja vaativista kohteista näkyy siinä, että ratkaisut täyttävät määräykset ja toimivat myös arjessa.
Miten LK Portaan suojakehät tehdään
Suojakehät suunnitellaan kohteen vaatimusten mukaan ja valmistetaan omassa tuotannossa. Jokainen rakenne käy läpi selkeän laadunvalvontaprosessin, jossa mitoitus, liittymät rakennuksiin ja viimeistely tarkistetaan ennen toimitusta.
Modulaarinen rakenne helpottaa kuljetusta ja nopeuttaa asennusta myös ahtaissa tai korkeissa kohteissa. CE-sertifioitu toiminta ja tarvittava dokumentaatio ovat kunnossa, eikä niitä tarvitse kaivaa esiin jälkikäteen.
Modulaarisuus on meidän valttimme
Oma suunnittelumme takaa nopean etenemisen tilausvaiheessa. Havainnollistavat kuvat ovat selkeät, jolloin suojakehän rakenne ja soveltuvuus kohteeseen on helppo nähdä.
Kun ratkaisu on selkeä jo alussa, vältytään muutoksilta asennusvaiheessa ja työmaa pysyy aikataulussa.
Tarvittaessa hoidetaan myös asennus omalla porukalla. Kun suunnittelu, valmistus ja asennus ovat saman toimijan vastuulla, kokonaisuus pysyy hallinnassa ja aikataulu pitää.
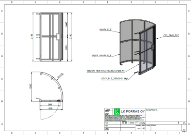
Suojakehän verhoilu
Suojakehän runko on aina vakiomallinen, modulaarinen rakenne. Runko voidaan verhoilla erilaisilla materiaaleilla, vakiotuotteena tarjoamme kolme erilaista vaihtoehtoa. Verhoilun valintaan vaikuttaa suojakehän tai suojahäkin käyttökohde, tarvitaanko kohteeseen sääsuojaa, visuaalista ilmettä tai kulunestoa.
LK-Sääsuoja reikäpelti peittävä
Tällä reikäpellillä saadaan pienen reikäkoon ansiosta hyvä sääsuoja kulkutiehen. Portaaseen ei pääse kinostumaan lunta.
Reikäpelti on aina kuumasinkitty ja se voidaan maalata haluamaasi RAL sävyyn. Ilmoitathan tarjouspyynnössä sävyn, erikoisemmat sävyt vaikuttavat hintaan merkittävästi.
LK-Sääsuoja reikäpelti avoin
Tällä reikäpellillä saadaan varmistettua kulkutien sääsuojaus. Avoin alue 33,3%
Reikäpelti on aina kuumasinkitty ja se voidaan maalata haluamaasi RAL sävyyn. Ilmoitathan tarjouspyynnössä sävyn, erikoisemmat sävyt vaikuttavat hintaan merkittävästi.
LK-kulunesto verkko 30x30x3
Valitse hitsattu verkko 30x30x3, kun haluat estää kulkutien luvattomat käyttäjät ja kohteessa ei tarvita sääsuojausta.
Verkko runkoineen on aina kuumasinkitty ja se on mahdollista myös maalata RAL-sävyihin. Ilmoitathan sävyn tarjouspyynnössä!
Räätälöity verhoilu
Etkö löytänyt mieleistä vaihtoehtoa vakiotuotteista? Ei ongelmaa, valmistamme tuotteen myös haluamallasi verhoilulla tai toimitamme pelkän rungon jonka voit verhoilla itse. Kysy lisää myyjiltämme!
Suojakehän erilaiset mallit
Suojakehällä voidaan verhoilla erimuotoisia kierreportaita ja suoria portaita. Kevyin versio on ns. 1/4 suojakehä, jossa on ovi ensimmäisen askelman edessä ja verhoilu 90° kierreportaan askelmien kohdalla. Toisessa ääripäässä suojakehällä verhoillaan tornitalon seinässä oleva kierreporras täyteen korkeuteen saakka. Väliin mahtuu vielä suojakehiä joilla ei ole tarkoitus verhoilla kierreporrasta tai suoraa porrasta kokonaan, vaan esimerkiksi estetään kulku portaaseen yhden tai kahden kerroskorkeuden verran.
LK-U-suojakehä
Valitse hitsattu verkko 30x30x3, kun haluat estää kulkutien luvattomat käyttäjät ja kohteessa ei tarvita sääsuojausta.
Verkko runkoineen on aina kuumasinkitty ja se on mahdollista myös maalata RAL-sävyihin. Ilmoitathan sävyn tarjouspyynnössä!
LK-O-suojakehä
O-mallinen suojakehä toimii ja näyttää hyvältä etenkin kierreportaan kanssa! Runkoon voi valita oven oikea tai vasenkätisenä.
LK-suora seinä/N-suojakehä
Suojakehä suorilla seinillä toimii niin suoran- kuin kierreportaankin kanssa.
LK- 1/4 suojakehä
Kehän ovi on ensimmäisen askelman edessä ja verhoilu 90° kierreportaan askelmien kohdalla. Estää luvattoman kulun portaalle kevyellä ratkaisulla.
Pintakäsittely ja lisätiedot
Suojakehät on lähtökohtaisesti aina kuumasinkitty mutta meiltä onnistuu myös maalatut verhoilut. Valitse suojakehän väri kohteen mukaan.
- Pintakäsittelynä lähtökohtaisesti aina kuumasinkitys
- Ulos tulevat suojakehät on aina lähtökohtaisesti vähintään kuumasinkittyinä, jotta ne kestävät sään vaihtelut
- Polttomaalaus RAL värikartan mukaan mahdollista, erikoisvärit sovitusti
- Maalatuissa tuotteissa kiinnitystarvikkeet kuumasinkitty/RST
- Maalatut tuotteet vakiona puolikiiltävällä sävyllä, jos ei muuta sovita
- Kuumasinkityn ja maalatun tuotteen pinta ei ole täysin tasainen, joten huomioithan tämän porrasta tilatessa

LKDS – digitaalinen konepaja
LK Porras Design System (LKDS) on meidän tapa tehdä portaiden suunnittelusta nopeampaa ja varmemmin toteutuskelpoista. Se yhdistää suunnittelun, mitoituksen ja tuotannon samaan kokonaisuuteen, jotta ratkaisut eivät jää vain paperille.
- Nopeus: työmaalle ja suunnittelijoille kelpaavat kuvat mukaan jo tarjousvaiheessa
- Varmuus: mitoitus ja rakenteet perustuvat modulaarisiin ratkaisuihin
- Sujuvuus: suunnitelma siirtyy suoraan tuotantoon ilman turhia välikäsiä
Mitä asiakkaat sanovat meistä?
Referenssit

Lokakuun asennuksia
Lokakuun asennuksia
Lokakuussa LK Porras toimitti ja asensi eri puolille Suomea portaita, luiskia ja kulkusiltoja – tällä kertaa painotus oli käytännön rakenteissa kierreportaiden sijaan. Jokainen kohde, Porvoosta Ouluun ja Pohjois-Savoon, toteutettiin mittojen mukaan ja asiakkaiden tarpeet edellä.

Puusepänteollisuuden hallin laajennus
Puusepänteollisuuden hallin laajennus
LK Porras toimitti ja asensi ulkokierreportaan sekä suojakehän Raision Puuseppien hallin laajennukseen Turussa. Asennus- ja toimitusaika oli kriittinen asiakkaan kohteen luovutuksen kannalta, mutta toimivan prosessin ansiosta kaikki sujui ajallaan. Lue lisää.
Kuvagalleria






















































